Navis Marine



Nyní dostupné

2026 Wider WIDERCAT 92 Serial Hybrid

Wider

Kapacita

8+4

Délka

28.04 m

Návrh

1.65 m

Paprsek

12 m

Motor

2 x 500kw Danfoss Editron PM Motor

Popis

KONSTRUKCE

Poloplošný trup vyrobený ze směsi skleněného a uhlíkového vlákna a žáruvzdorného plastu


OBECNÉ

  • Výrobce: WIDER srI
  • Délka (L.O.A.): přibližně 28,04 m (92′ 0″)
  • Šířka: přibližně 12,00 m (39′ 4″)
  • Ponor (plný výtlak): přibližně 1,65 m (5’5″)
  • Trup a nástavba: GRP + CRP
  • Výtlak při plném zatížení: přibližně 113,5 tun
  • Hrubá tonáž: 242 GT
  • Návrhář: Luca Dini Design

OBJEM NÁDRŽÍ

  • Palivo: 2x 7 500 l – 2x 1 980 US gal
  • Čerstvá voda: 2x 1 440 l – 2x 380 galonů

RYCHLOST/DOJAZD

  • Hřídel s dvojitými šroubovými vrtulemi a systémem Wider Serial Hybrid umožňuje v testovacích podmínkách dosáhnout dojezdu až 2 400 nm při rychlosti 8 uzlů.
  • Maximální rychlost (elektrický pohon): 14 uzlů
  • Cestovní rychlost: 12 uzlů / Dojezd nm: přibližně 900
  • Ekonomická rychlost: 8 uzlů / Dosah nm: »přibližně 2 400
  • ZEM: až 6 uzlů / Dosah nm: přibližně 4,5 hodiny při rychlosti 6 uzlů
  • Na kotvě: 12 hodin
  • Baterie: k dispozici 360 kW

POHON

  • Typ pohonu: e hřídel s dvojitými šroubovými vrtulemi
  • Pohonné motory: 2 x 500 kW Danfoss Editron PM Motor
  • Generátorová soustava (proměnná rychlost): 2 x 349 kW FPT N67 + Danfoss Editron

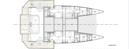
UBYTOVÁNÍ

  • Ubytování pro: 8 hostů + 4 členy posádky

Správa charteru: k dispozici

Cena

Cena

Cena na vyžádání

Specification

Rok výstavby

2026

Vytěsnění

113.5 t

Maximální rychlost (uzly)

14

Cestovní rychlost (uzly)

12

Objem palivové nádrže (litry)

2x 7.500

Objem vody (litry)

2x 1.440

Vnější styl a koncepce

Luca Dini Design